Home
Rents
BLog
About Us
Contact Us
Staff
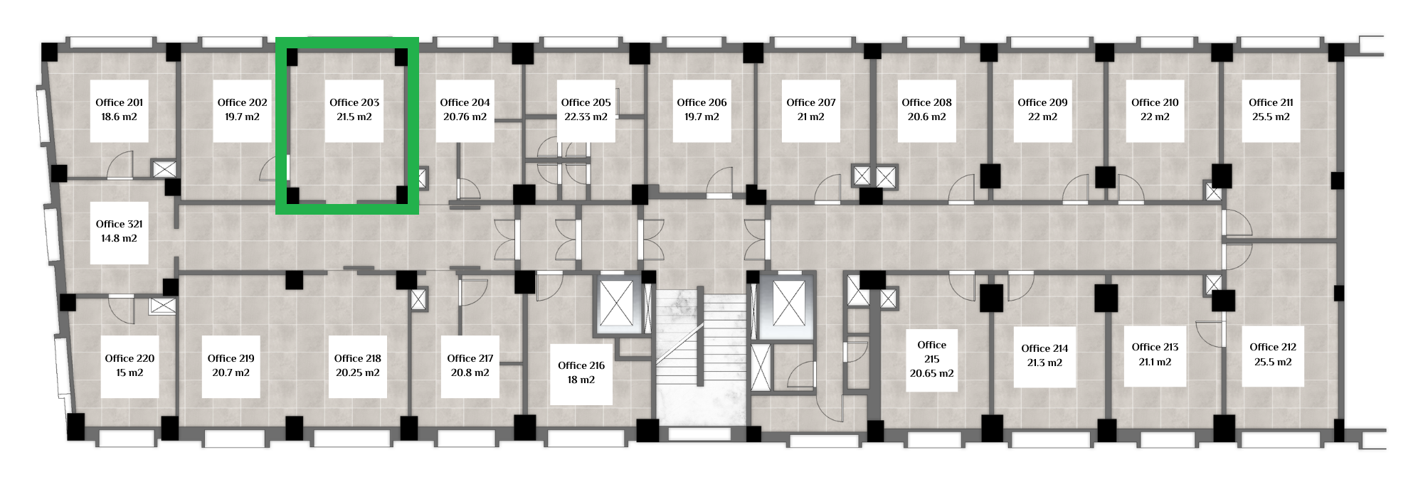
New - N-f2 - N203
Space : 21.5 m2
Rent Salary : 1000 $
Book Now :
Loading...